Sketch Design of House Carqueija

‹ Return to Modern Tropical House Carqueija in Brazil

Sketch Design of House Carqueija

Sketch Design of House Carqueija. Sketch smart house design inspirations.

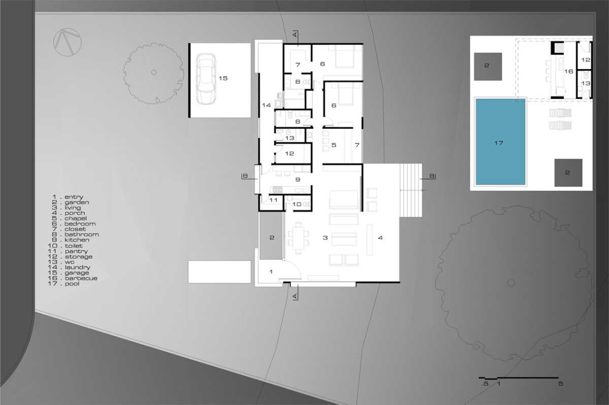
This image is titled Sketch Design of House Carqueija and is attached to our interior design article about Modern Tropical House Carqueija in Brazil. You can check out the article for more great ideas about Sketch Design of House Carqueija, find other related photos from the same post below, or even read some of our other interior design guides.
Modern Tropical House Carqueija in Brazil

Excerpt from our Modern Tropical House Carqueija in Brazil article:

This modern tropical house Carqueija is located in Camaçari, Brazil. The house was designed by Bento e Azevedo Arquitetos Associados. The House Carqueija presents the best of modern design, especially adapted to resist the tropical climate. House is designed with two rooms, a chapel and a large and also flexible social room. It utilizes natural light very well to make the entire place seem more natural and pleasant. Enjoy the gallery, and let us know what you think about this modern... Read full article »