‹ Return to Contemporary Skateboarding House Design by LEVEL
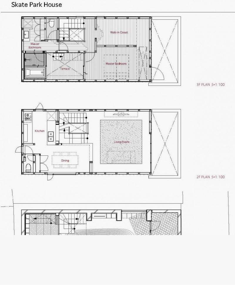
Cool skate park house plan design ideas. This is an unusual home design. This house has three levels plus a loft on the third floor terrace. An impressive residence.
The house is located in Tokyo, Shibuya, Sendagaya, Japan. The designer LEVEL Architects made this house at the request of the owners, a young married couple who enjoy skateboarding and playing the piano. While most people would request a garage or a large dining room, this couple had something entirely different in mind. They wanted the perfect home for skateboarders, and they most certainly got it. Besides a skateboarding bowl in the floor, the house also features high ceiling living room,... Read full article »
Unlike modern kitchen which are dominated by smooth and straight lines and glossy surfaces, rustic design kitchens are known for their extensive usage of natural materials: brick, wood, ceramics, and rock. Due to those materials these kitchens have predominantly curved…
Considering the state of financial markets in the recent years, it’s not a surprise more and more people who are looking to build their own house are no longer thinking big. Small houses are often adequate and certainly more affordable…
Bathrooms often come in limitless colors and design choices, but one of the most more frequent ones over the past few years has been the classic black and white tile set. These simplistic colors certainly made a comeback lately and…
The backyard is a great place for the whole family. The kids can play and the parents can cook and grill out on the deck. Having a great backyard is one of the big perks of owning a home. Some…
Well, unfortunately winter is just around the corner. With the leaves starting to fall and the cold brisk air coming in, its time to fix up that fireplace and get it ready for the long cold nights of the winter.…
